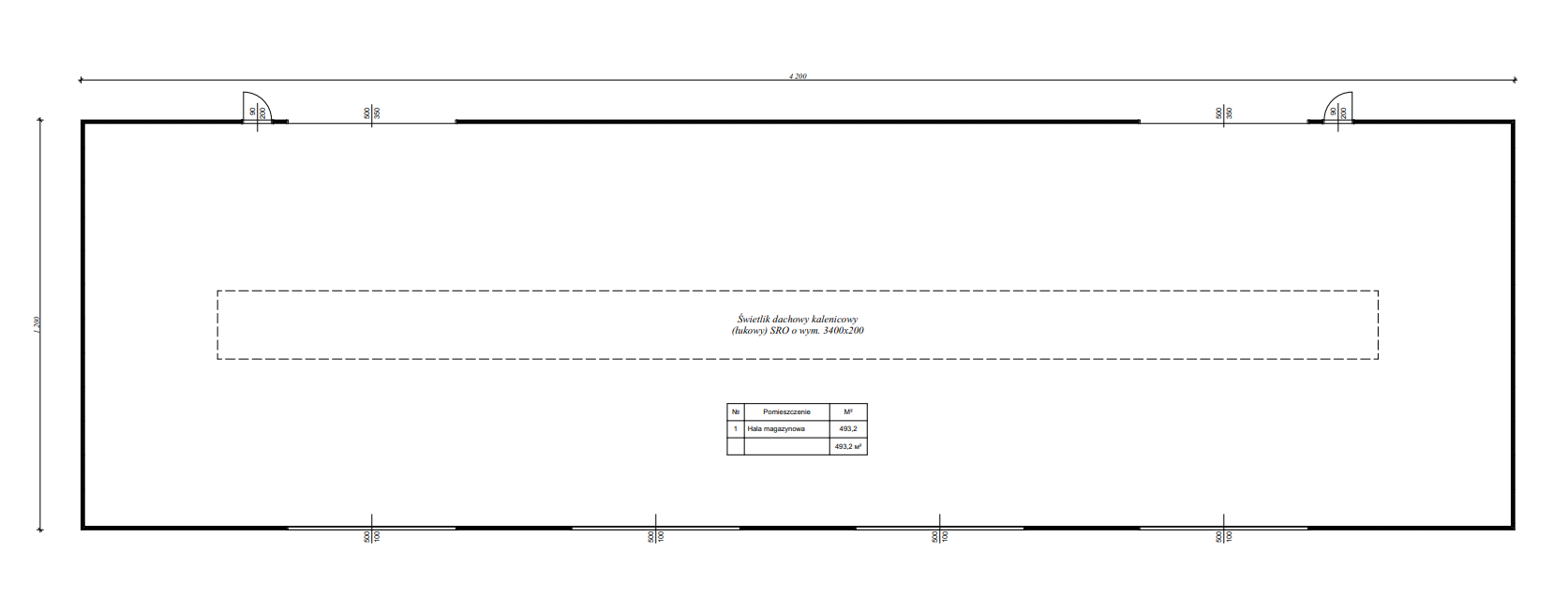
Hala magazynowa 540m2|12mx45m|PA-01
4200,00 zł NETTO
Projekt hali stalowej: PA-01
Szerokość: 12 m
Długość: 45 m
Powierzchnia użytkowa: 540 m2
Kąt nachylenia dachu: 10°
Kolorystyka hal będzie dostosowana do potrzeb klienta.
Idealna zabudowa pod przechowanie płodów rolnych, garażowanie maszyn rolniczych, składowanie paszy dla zwierząt lub nawozów.
Opis
Nasze rozwiązania architektoniczne są dostosowane do współczesnych standardów i przemysłowych wymagań, gwarantując Ci funkcjonalność, bezpieczeństwo i efektywność.
ELEWACJE

PRZEKRÓJ

PRZYZIEMIA

INFORMACJE DOTYCZĄCE PROJEKTU
| Hala magazynowa jednokondygnacyjna. Budynek niepodpiwniczony.
Technologia: Każdy projekt gotowy może być dostosowany do wymagań inwestora |
ZAWARTOŚĆ PROJEKTU
- projekt architektoniczno-budowlany
- wizualizacja hali 3 d ze zmianami kolorów
- projekt uzgodniony przez rzeczoznawcę do spraw zabezpieczeń P-POŻ
- zgoda na zmiany w projekcie













