Hala 972m2|18m x 54m|PA-19
5300,00 zł NETTO
Projekt hali stalowej: PA-19
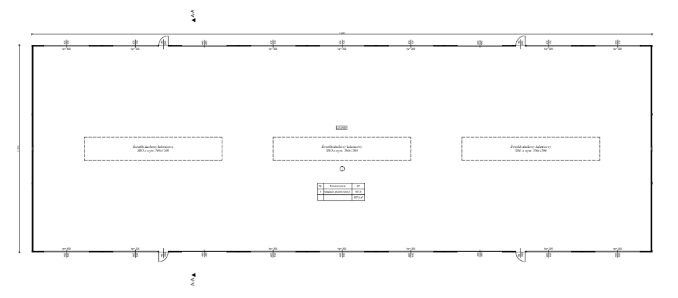
Szerokość: 18 m
Długość: 54 m
Wysokość: 5m
Kąt nachylenia dachu: 10°
Powierzchnia użytkowa: 972 m2
Kolorystyka hal będzie dostosowana do potrzeb klienta.
Duża hala stalowa to imponujący i wszechstronny projekt, idealnie sprawdzający się dla różnorodnych potrzeb biznesowych i branżowych. Z powierzchnią niemalże 1000 metrów kwadratowych, ta innowacyjna konstrukcja jest perfekcyjnym rozwiązaniem dla przedsiębiorców, którzy poszukują gotowych projekty hal stalowych, łączących w sobie nowoczesność, funkcjonalność i wytrzymałość.
Opis
Nasze rozwiązania architektoniczne są dostosowane do współczesnych standardów i przemysłowych wymagań, gwarantując Ci funkcjonalność, bezpieczeństwo i efektywność.
ELEWACJE


PRZEKRÓJ
PRZYZIEMIA
INFORMACJE DOTYCZĄCE PROJEKTU
| Hala jednokondygnacyjna. Budynek niepodpiwniczony.
Technologia: Każdy projekt gotowy może być dostosowany do wymagań inwestora |
ZAWARTOŚĆ PROJEKTU
- projekt architektoniczno-budowlany
- wizualizacja hali 3 d ze zmianami kolorów
- projekt uzgodniony przez rzeczoznawcę do spraw zabezpieczeń P-POŻ
- zgoda na zmiany w projekcie
Informacje dodatkowe
| szerokość | 18 m |
|---|---|
| długość | 54 m |















