Hala 630m2|15m x 42m|PA-12
4600,00 zł NETTO
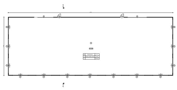
Projekt hali stalowej: PA-12
Szerokość: 15 m
Długość: 42 m
Wysokość: 5m
Kąt nachylenia dachu: 10°
Powierzchnia użytkowa: 630 m2
Kolorystyka hal będzie dostosowana do potrzeb klienta.
Średniej wielkości hala stalowa to wszechstronny projekt, doskonale sprawdzający się w różnych branżach i celach biznesowych. Z powierzchnią przekraczającą 500 metrów kwadratowych, ta funkcjonalna konstrukcja jest idealnym rozwiązaniem dla przedsiębiorców poszukujących nowoczesnych rozwiązań.
Opis
Nasze rozwiązania architektoniczne są dostosowane do współczesnych standardów i przemysłowych wymagań, gwarantując Ci funkcjonalność, bezpieczeństwo i efektywność.
ELEWACJE


PRZEKRÓJ
PRZYZIEMIA
INFORMACJE DOTYCZĄCE PROJEKTU
| Hala jednokondygnacyjna. Budynek niepodpiwniczony.
Technologia: Każdy projekt gotowy może być dostosowany do wymagań inwestora |
ZAWARTOŚĆ PROJEKTU
- projekt architektoniczno-budowlany
- wizualizacja hali 3 d ze zmianami kolorów
- projekt uzgodniony przez rzeczoznawcę do spraw zabezpieczeń P-POŻ
- zgoda na zmiany w projekcie















