Hala 648m2|12m x 54m|PA-07

4600,00  NETTO

Projekt hali stalowej: PA-07

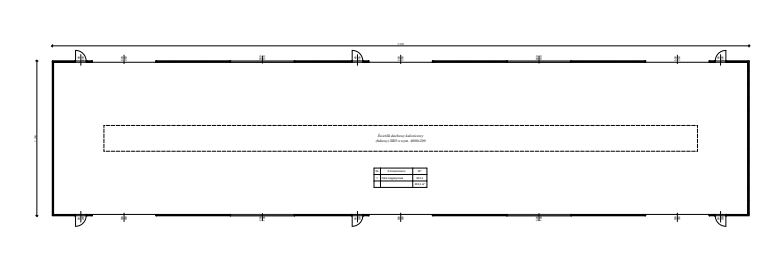
Szerokość: 12 m

Długość: 54 m

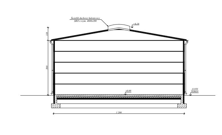
Wysokość: 5m

Kąt nachylenia dachu: 10°

Powierzchnia użytkowa: 648 m2

Kolorystyka hal będzie dostosowana do potrzeb klienta.


Średniej wielkości hala stalowa to wszechstronny projekt, doskonale sprawdzający się w różnych branżach i celach biznesowych. Z powierzchnią przekraczającą 500 metrów kwadratowych, ta funkcjonalna konstrukcja jest idealnym rozwiązaniem dla przedsiębiorców poszukujących nowoczesnych rozwiązań.


Zapytaj o projekt

Opis

Nasze rozwiązania architektoniczne są dostosowane do współczesnych standardów i przemysłowych wymagań, gwarantując Ci funkcjonalność, bezpieczeństwo i efektywność.

 

ELEWACJE


 

PRZEKRÓJ


Powiększ przekrój

PRZYZIEMIA


Powiększ przekrój

 

INFORMACJE DOTYCZĄCE PROJEKTU


Hala  jednokondygnacyjna. Budynek niepodpiwniczony.

Technologia:
Ściany zewnętrzne- płyta warstwowa PIR
Konstrukcja nośna- stalowa, ramy główne stalowe jednonawowe ze ściągiem.
Projekt dostosowany do III strefy śniegowej i I wiatrowej.

Każdy projekt gotowy może być dostosowany do wymagań inwestora

ZAWARTOŚĆ PROJEKTU

  • projekt architektoniczno-budowlany
  • wizualizacja hali 3 d ze zmianami kolorów
  • projekt uzgodniony przez rzeczoznawcę do spraw zabezpieczeń P-POŻ
  • zgoda na zmiany w projekcie