Hala 840m2|20m x 42m|PA-22
5300,00 zł NETTO
Projekt hali stalowej: PA-22
Szerokość: 20 m
Długość: 42 m
Wysokość: 5m
Kąt nachylenia dachu: 10°
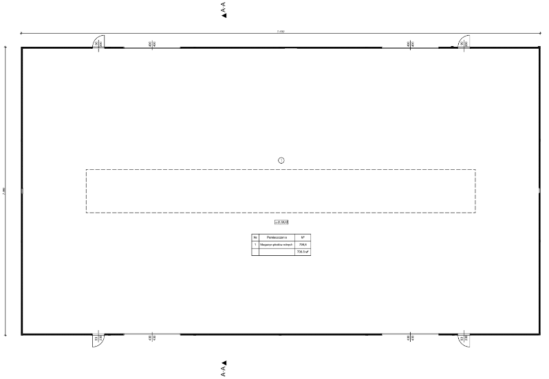
Powierzchnia użytkowa: 840 m2
Kolorystyka hal będzie dostosowana do potrzeb klienta.
Sporej wielkości projekt hali stalowej to wszechstronny projekt, idealnie sprawdzający się dla różnorodnych potrzeb biznesowych i branżowych. Z powierzchnią ponad 800 metrów kwadratowych, ta innowacyjna konstrukcja jest perfekcyjnym rozwiązaniem dla przedsiębiorców, którzy poszukują gotowych projekty hal stalowych, łączących w sobie nowoczesność, funkcjonalność i wytrzymałość.
Opis
Nasze rozwiązania architektoniczne są dostosowane do współczesnych standardów i przemysłowych wymagań, gwarantując Ci funkcjonalność, bezpieczeństwo i efektywność.
ELEWACJE

PRZEKRÓJ
PRZYZIEMIA
INFORMACJE DOTYCZĄCE PROJEKTU
| Hala jednokondygnacyjna. Budynek niepodpiwniczony.
Technologia: Każdy projekt gotowy może być dostosowany do wymagań inwestora |
ZAWARTOŚĆ PROJEKTU
- projekt architektoniczno-budowlany
- wizualizacja hali 3 d ze zmianami kolorów
- projekt uzgodniony przez rzeczoznawcę do spraw zabezpieczeń P-POŻ
- zgoda na zmiany w projekcie
Informacje dodatkowe
| szerokość | 18 m |
|---|---|
| długość | 24 m |
















